Feedback
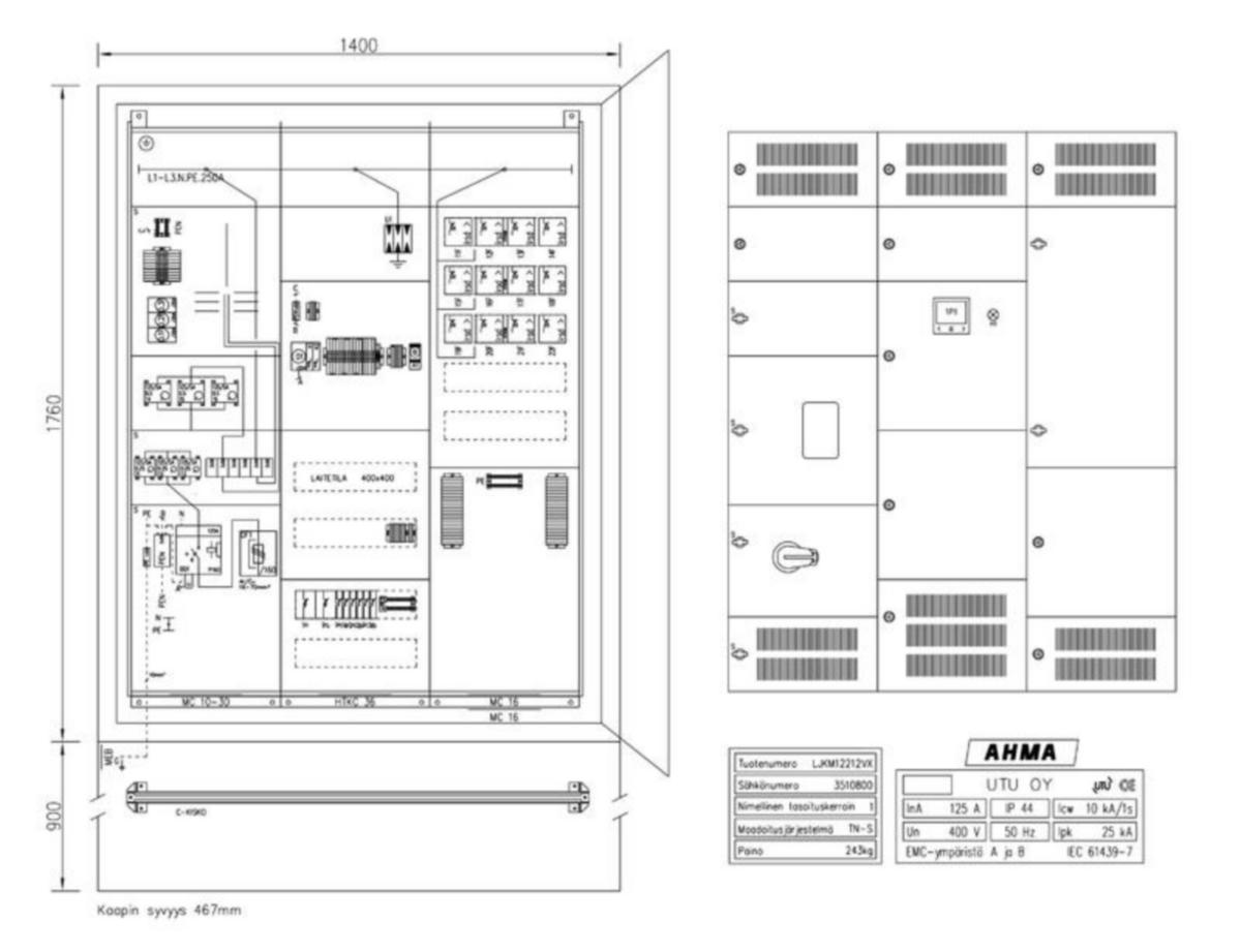
Latausjakokaapit ovat vapaasti piha-alueelle jalustalle asennettavia, suojakaapilla varustettuja keskuksia, joissa on huomioitu latauskeskusstandardin tarpeet ja vaatimukset. Lämpenemän hallinta on sähköauton latauksessa erityisen tärkeää, joten UTUn latausjakokaapeissa on aina komponenttikohtaiset tuuletusvälit ja kenttäkohtainen tuuletus. Latausjakokaapin sisällä olevan keskuksen kotelointiluokka on tuulettuvan rakenteen myötä IP31, mutta kokonaisuutena (suojakaappi + keskus) toteutuu kotelointiluokka IP44. Suojakaapin materiaalina on maalattu teräs (väri RAL 7024) ja ovessa on kolmipistesalpa lukitusmahdollisuudella. Katolle on sijoitettu nostokorvat. Kaapin kyljissä sijaitsevat tuuletusritilät. Huom! Jalusta tilattava erikseen (soveltuva jalusta JAL1400 3500691).Sähkölaitoksen mittausta varten mittausmalleissa (LKM ja LJKM) keskuksessa M2-mittaripaikka ja 0.2S-tarkkuusluokan virtamuuntajat, sekä yhdistelmäylijännitesuoja Hager SPA930 hälytyskoskettimilla. Keskukseen voidaan liittää sähkölaitoksen 63A liittymä, joka on teholiittymää halvempi. Myöhemmin tehontarpeen kasvaessa, liittymää voidaan kasvattaa 125A asti. Keskuksen osalta tämä onnistuu kompaktikatkaisijassa olevan DIP-kytkimen avulla (katkaisijatila sinetöitävissä). Latauskeskus Ahma LJKM12212VX ominaisuudet:Nimellisvirta 125A (valittavissa 80A / 100A / 125A)Lähdöt 12kpl ADM470C (Hager vikavirtajohdonsuojakatkaisija C-käyrä 20A, 4-nap. 30mA)Syötössä kompaktikatkaisija HHS125DC aukiohjauskelalla (Hager H3+)Verkkoanalysaattori ModBus-tiedonsiirtoväylällä (Circutor CVM-C11)Syöttöliittimet HYS005H (Al/Cu 35-120mm²)Latauslähdöille Al/Cu-vaihtoliittimet 2,5-35mm².Lämpenemän hallintaSähköauton latauksessa keskuksen lähtökomponentit toimivat usein lähellä nimellisvirtaa, joten lämpenemän hallinta on keskuksen elinkaaren kannalta erittäin tärkeää.Keskuksessa huomioitu latauskuorman mukaiset lämpenemänhallinnan tarpeet:kenttäkohtainen tuuletuslatauslähdöissä ilmavälitlämpö-hätä-seis -toimintoLatauslähtöjen tasoituskerroin 1 (latauskeskusstandardin vaatimuksen mukaisesti). Latauskeskuksessa on DIN-kiskokohtainen anturointi, jolla on toteutettu valmius dynaamiseen lämpenemähallintaan. Liitettäessä keskus eParking-taustajärjestelmään, latauskeskus voi hallita latauskuormaa dynaamisesti lähtökomponenttien lämpenemän perusteella. ElinkaarihallintaKeskuksessa on varauksena laitetila kuormanhallinnan laitteille. Kuormanhallinnan tila on yleinen laitetila, johon voi asentaa mitä tahansa laitteita. Laitetilassa varaus eTolppa-järjestelmän kuormanhallintalaitteelle (eG) monitasoista kuormanhallintaa varten. Kun eTolppa-järjestelmän kuormanhallintalaite asennetaan keskukseen, ei tarvita erillistä yhteyslaitetta latausasemissa.Mikäli keskuksen elinkaaren aikana lämpö-hätä-seis -toiminto katkaisee sähkönsyöttöä toistuvasti, on hyvä harkita dynaamisen lämpenemänhallinnan käyttöönottoa. Toiminnossa taustajärjestelmä pystyy rajoittamaan latausasemien kuormaa portaattomasti lähtökomponenttien lämpenemän perusteella.Keskuksessa on varaus yliaaltosuodattimelle. Verkkoanalysaattorilla voidaan seurata harmonisten yliaaltojen kehittymistä, ja jälkikäteen on mahdollista helposti liittää keskukseen yliaaltosuodatin. Analysaattoriin on mahdollista lisätä hälytyksiä tähän liittyen.Keskuksessa on lisäksi erillinen tila varalähdöille. Varalähtötilassa on vakiona 3kpl C10 + 2kpl C16 (1-nap.) johdonsuojakatkaisijoita varalla (muita sähköistystarpeita varten). Varalähtöjä ei ole johdotettu riviliittimille.
- Tuotenumero 3510800
- Toimittajan tuotenumero: LJKM12212VX
- EAN koodi: 6438526002910
- Materiaaliluokka S3463B
Tekniset tiedot
- Nimellisjännite: 400 V
- Nimellisvirta: 100 A
- Väri: harmaa
- RAL-numero: 7024
- Leveys: 1400 mm
- Korkeus: 1760 mm
- Syvyys: 467 mm
- Asennus: jalusta (maa-asennus)
- Materiaali: teräs
- Pinnan suojaus: muu
- Kaapin IP-luokka: IP44
- Napojen lukumäärä: 3
- Haarajohtimen nimellispoikkipinta-ala: 0.5-6 mm²
- Pääjohtimen/syöttökaapelin nimellispoikkipinta-ala: 35-120 mm²
- Kiskon IP-luokka: IP00


