Feedback



Suomen Kaapelitiet
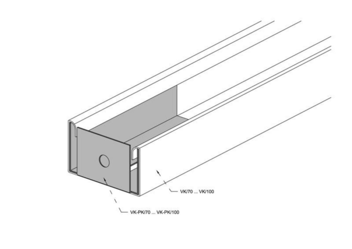
Päätykannake SKT VK-PK
SEINÄKANNAKE SKT VK-PK/70 ZN KZNOL
Tuotenumero Toimittajan tuotenumero:
1472383
VK-PK/70 zn
Nähdäksesi varastosaldon ja hinnan
VK-PK/70-100 zn/PM seinäkannakkeita käytetään valaisinkiskon päädyn lukitsemiseen seinään. Päätykannake asennetaan yleisimmin käyttäen kiila-ankkuria (esim. KA10x70 S1472439).
- Tuotenumero 1472383
- Toimittajan tuotenumero: VK-PK/70 zn
- EAN koodi: 6410014723835
- Materiaaliluokka S1416B
Tekniset tiedot
- Pakkauskoot: 1 KPL/1 KPL/50 KPL
- Materiaali: teräs
- Pinnan suojaus: jatkuvasti galvanoitu
- Väri: sinkki